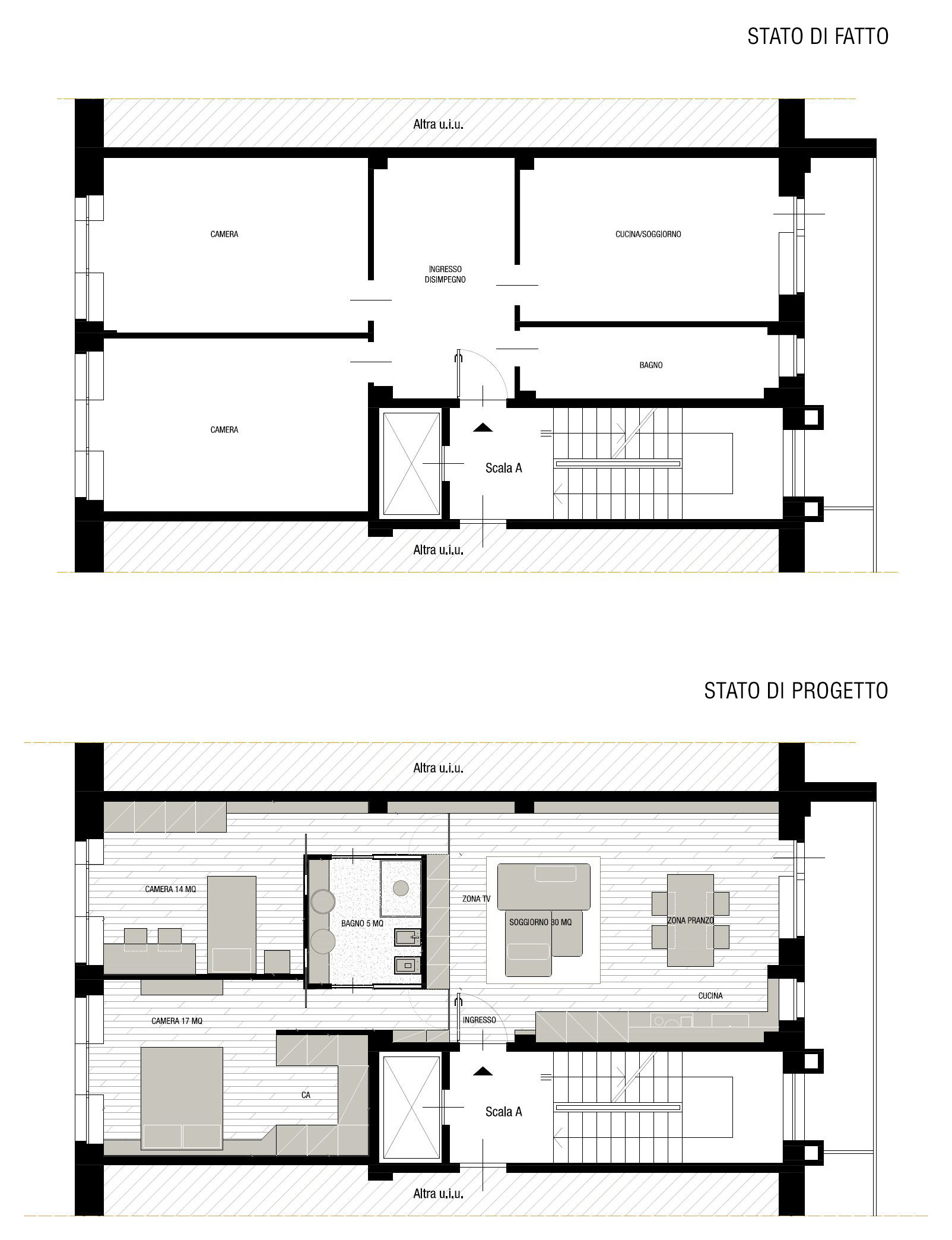
Ristrutturazione completa di un appartamento di 70 mq dove per ottimizzare al meglio gli spazi si è adottato un bagno centrale con doppio ingresso così da liberare metri quadrati utili nella zona giorno e creare l'open space che tanto volevano i proprietari.
Lo stile classico contemporaneo impreziosisce gli ambienti interni donandogli quell'eleganza senza tempo che il palazzo e il quartiere hanno nel dna.



























