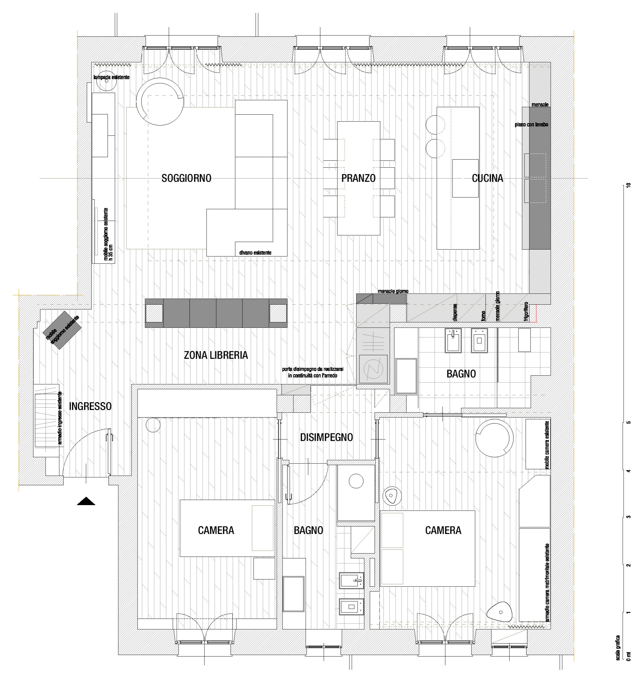
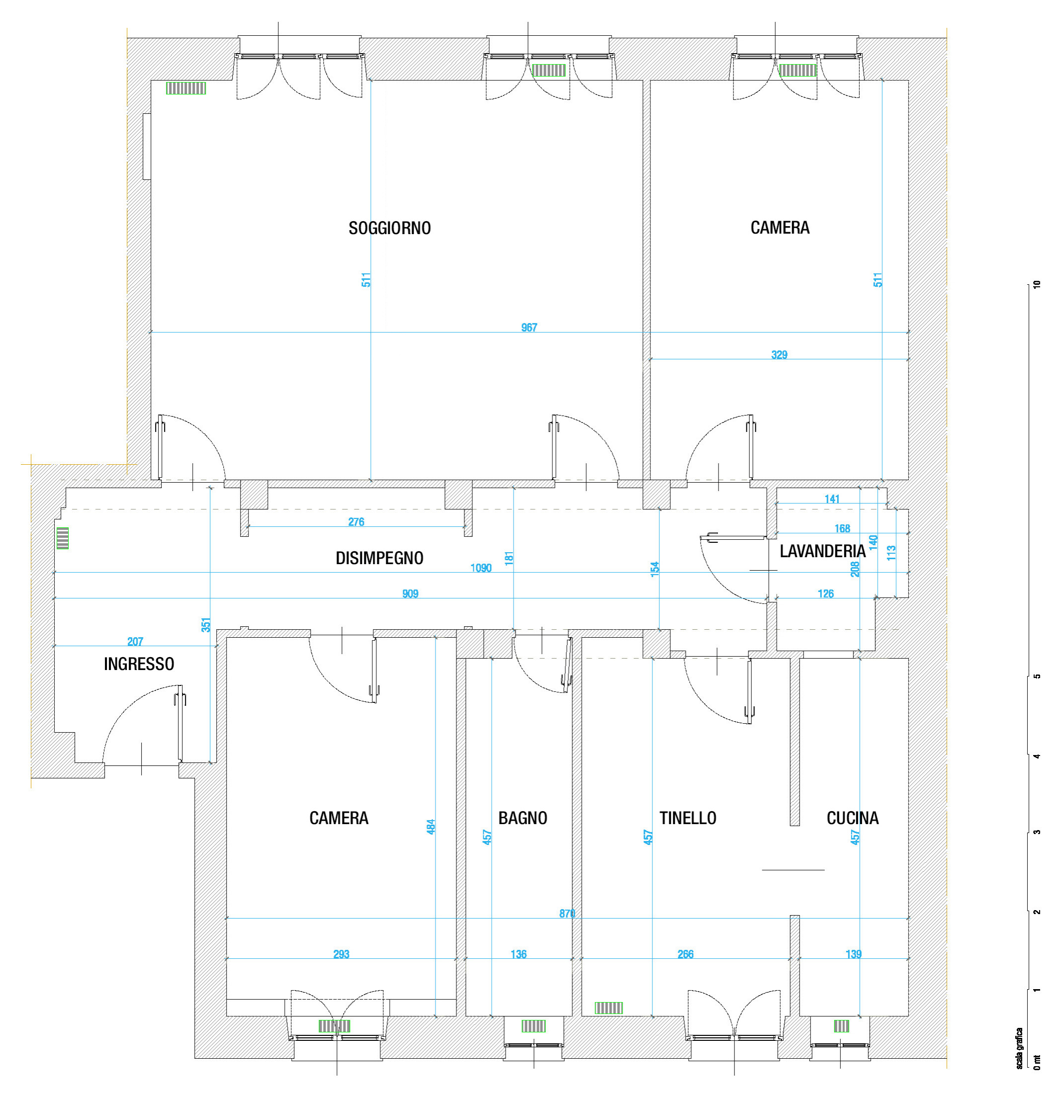
Una ristrutturazione totale di un appartamento di 110 mq calpestabili dove le esigenze della committenza ci hanno permesso di realizzare un grande open space con cucina, zona pranzo e soggiorno. La necessità di recuperare qualche arredo ci ha stimolati ad ottimizzare ancor meglio gli spazi. Le scelte progettuali sono state così condizionate e influenzate dall'obbiettivo di trasformare gli arredi recuperati in veri e propri protagonisti attivi dei nuovi ambienti. Una casa pronta da vivere che trasmette freschezza, accoglienza e quel pizzico di eleganza che non guasta mai..















































